Columbia Debris Assessment
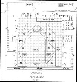
Thousands of pieces of orbiter Columbia debris, most of it found in north central Texas, are being sorted, characterized, then laid out in a hangar here on a 200 X 250-ft. grid (below), separated into specific orbiter sections. Only about 11% of Columbia has been recovered so far. The Reusable...
Subscription Required
This content requires a subscription to one of the Aviation Week Intelligence Network (AWIN) bundles.
Schedule a demo today to find out how you can access this content and similar content related to your area of the global aviation industry.
Already an AWIN subscriber? Login
Did you know? Aviation Week has won top honors multiple times in the Jesse H. Neal National Business Journalism Awards, the business-to-business media equivalent of the Pulitzer Prizes.




